興信ビル 4階
物件概要
物件番号
400-00120-40物件名
興信ビル所在地
- 東京都千代田区神田小川町1-10
- アクセスマップ
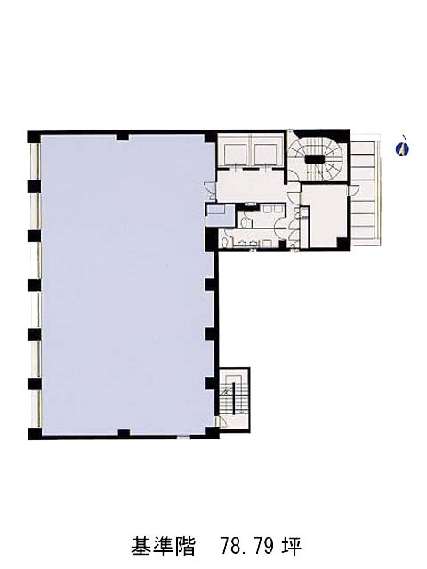
面積
78.79坪賃料(共益費含)
:応相談応相談
入居日
2026年2月上旬保証金
応相談礼金
なし更新料
なし償却費
なし竣工
1984年9月構造
SRC規模
地上8階/地下1階トイレ
男女別空調
個別空調エレベーター
有セキュリティ
駐車場
無耐震
新耐震基準基準階天井高
2460mm空室延床面積
157.58坪情報更新日
2026/01/13興信ビルのテナント募集中区画
| 階数 | 面積 | 賃料(共益費含む) | 保証金 | 入居可能日 | 検討リスト | 詳細 |
|---|---|---|---|---|---|---|
| 4 | 78.79坪 | 応相談(応相談) | 応相談 | 2026年2月上旬 | ||
| 5 | 78.79坪 | 応相談(応相談) | 応相談 | 2026年2月上旬 |
…新着物件
アクセス
興信ビルの物件情報
興信ビル(千代田区神田小川町)は淡路町駅(A7番出口)から徒歩2分の賃貸オフィスです。3駅3路線が徒歩2分圏内に集まる利便性の高い立地。本郷通り沿いの角地に構えた重厚感ある建物で、視認性も良好です。ベージュのタイル張りの外観はクラシカルで飽きのこないデザインといえ、落ち着きのある佇まいが印象的です。
基準階は約80坪、1フロア1テナントの構成。執務スペースは長方形の整形無柱空間で、OAフロアを採用しているため、すっきりとした室内はレイアウトの自由度も高く、さまざまな業種にフィットします。
また、男女別トイレは共用部に配置されており、執務エリアと明確に分かれている点もポイントです。周辺にはコンビニや飲食店、大手銀行のATMも揃っており、日常の利便性も申し分ありません。興信ビルは淡路町駅(A7番出口)の他に小川町駅(A7番出口)徒歩2分、新御茶ノ水駅(B5番出口)徒歩2分で利用も可能です。

