7階は現在募集がありません
2フロア募集区画あり

興信ビル 7階

前の写真 次の写真

物件概要

物件番号

400-00120-70

物件名

興信ビル

所在地

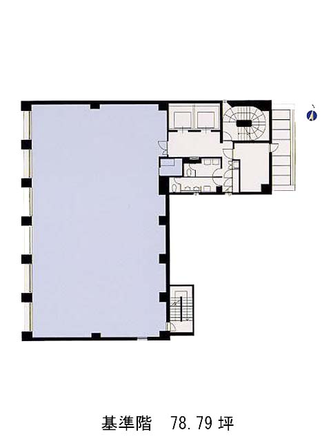
面積

78.79坪

賃料(共益費含)


入居日

募集終了

保証金

礼金

更新料

償却費

竣工

1984年9月

構造

SRC

規模

地上8階/地下1階

トイレ

男女別

空調

個別空調

エレベーター

セキュリティ

駐車場

耐震

新耐震基準

基準階天井高

2460mm

空室延床面積

157.58坪

最寄駅

情報更新日

2026/01/13

興信ビルのテナント募集中区画

階数 面積 賃料(共益費含む) 保証金 入居可能日 検討リスト 詳細
4 78.79坪 応相談(応相談) 応相談 2026年2月上旬
5 78.79坪 応相談(応相談) 応相談 2026年2月上旬
…新着物件

アクセス

興信ビルの物件情報

興信ビル(千代田区神田小川町)は淡路町駅(A7番出口)から徒歩2分の賃貸オフィスです。
3駅3路線が徒歩2分圏内に集まる利便性の高い立地。本郷通り沿いの角地に構えた重厚感ある建物で、視認性も良好です。ベージュのタイル張りの外観はクラシカルで飽きのこないデザインといえ、落ち着きのある佇まいが印象的です。
基準階は約80坪、1フロア1テナントの構成。執務スペースは長方形の整形無柱空間で、OAフロアを採用しているため、すっきりとした室内はレイアウトの自由度も高く、さまざまな業種にフィットします。
また、男女別トイレは共用部に配置されており、執務エリアと明確に分かれている点もポイントです。周辺にはコンビニや飲食店、大手銀行のATMも揃っており、日常の利便性も申し分ありません。
興信ビルは淡路町駅(A7番出口)の他に小川町駅(A7番出口)徒歩2分、新御茶ノ水駅(B5番出口)徒歩2分で利用も可能です。

近隣のエリア・駅から探す