5階は現在募集がありません
1フロア募集区画あり

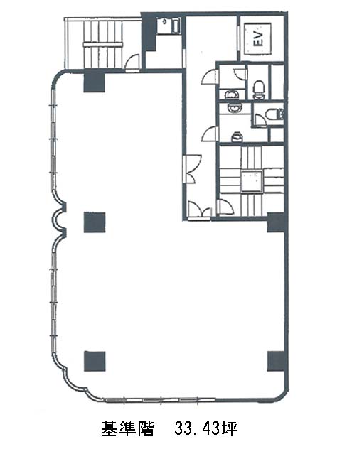
ダイナミックアート九段下ビル 5階

前の写真 次の写真

物件概要

物件番号

402-00003-70

物件名

ダイナミックアート九段下ビル

所在地

面積

33.44坪

賃料(共益費含)


入居日

募集終了

保証金

礼金

更新料

償却費

竣工

1988年5月

構造

SRC

規模

地上8階/地下1階

トイレ

男女別

空調

個別空調

エレベーター

セキュリティ

駐車場

耐震

新耐震基準

基準階天井高

空室延床面積

34.09坪

最寄駅

情報更新日

2025/10/10

ダイナミックアート九段下ビルのテナント募集中区画

階数 面積 賃料(共益費含む) 保証金 入居可能日 検討リスト 詳細
6 34.09坪 594,022円/月(17,425円/坪) 270万円
…新着物件

アクセス

ダイナミックアート九段下ビルの物件情報

ダイナミックアート九段下ビル(千代田区神田神保町)は神保町駅(A1番出口)から徒歩3分の賃貸オフィスです。
ダイナミックアート九段下ビルは神保町駅(A1番出口)の他に九段下駅(6番出口)徒歩4分、竹橋駅(1b番出口)徒歩9分で利用も可能です。

近隣のエリア・駅から探す