ダイナミックアート九段下ビル 6階
物件概要
物件番号
402-00003-81物件名
ダイナミックアート九段下ビル所在地
- 東京都千代田区神田神保町3-19-7
- アクセスマップ
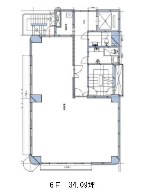
面積
34.09坪賃料(共益費含)
月額594,022円(17,425円/坪)
入居日
即保証金
2,700,098円礼金
1ケ月更新料
なし償却費
なし竣工
1988年5月構造
SRC規模
地上8階/地下1階トイレ
男女別空調
個別空調エレベーター
有セキュリティ
有駐車場
無耐震
新耐震基準基準階天井高
空室延床面積
34.09坪情報更新日
2025/10/10ダイナミックアート九段下ビルのテナント募集中区画
| 階数 | 面積 | 賃料(共益費含む) | 保証金 | 入居可能日 | 検討リスト | 詳細 |
|---|---|---|---|---|---|---|
| 6 | 34.09坪 | 594,022円/月(17,425円/坪) | 270万円 | 即 |
…新着物件
アクセス
ダイナミックアート九段下ビルの物件情報
ダイナミックアート九段下ビル(千代田区神田神保町)は神保町駅(A1番出口)から徒歩3分の賃貸オフィスです。ダイナミックアート九段下ビルは神保町駅(A1番出口)の他に九段下駅(6番出口)徒歩4分、竹橋駅(1b番出口)徒歩9分で利用も可能です。

