THE CITY 神田神保町 2階
物件概要
物件番号
402-00416-4物件名
THE CITY 神田神保町所在地
- 東京都千代田区神田神保町2-10-14
- アクセスマップ
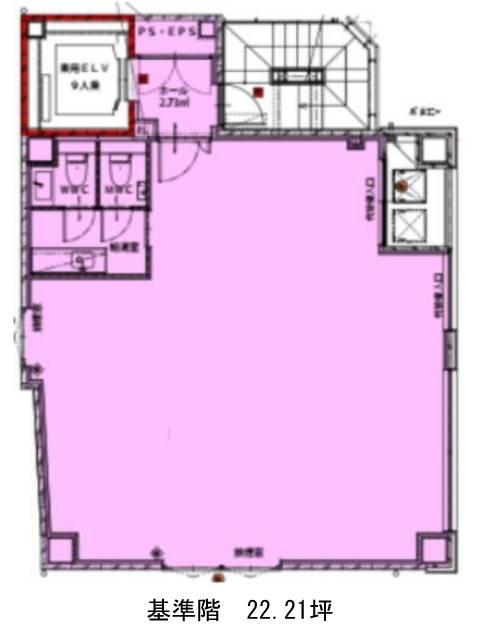
面積
22.21坪賃料(共益費含)
月額462,000円(20,802円/坪)
入居日
2026年1月上旬保証金
2,400,013円礼金
2ケ月更新料
新1.5ケ月償却費
1ケ月竣工
2022年9月構造
S造規模
地上8階トイレ
男女別空調
エレベーター
有セキュリティ
駐車場
無耐震
新耐震基準基準階天井高
空室延床面積
22.21坪情報更新日
2025/10/02THE CITY 神田神保町のテナント募集中区画
| 階数 | 面積 | 賃料(共益費含む) | 保証金 | 入居可能日 | 検討リスト | 詳細 |
|---|---|---|---|---|---|---|
| 2 | 22.21坪 | 462,000円/月(20,802円/坪) | 240万円 | 2026年1月上旬 |
…新着物件
アクセス
THE CITY 神田神保町の物件情報
THE CITY 神田神保町(千代田区神田神保町)は神保町駅(A2番出口)から徒歩2分の賃貸オフィスです。THE CITY 神田神保町は神保町駅(A2番出口)の他に九段下駅(6番出口)徒歩8分、水道橋駅(東口)徒歩9分で利用も可能です。

