5階は現在募集がありません
1フロア募集区画あり

THE CITY 神田神保町 5階

前の写真 次の写真

物件概要

物件番号

402-00416-7

物件名

THE CITY 神田神保町

所在地

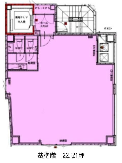
面積

22.21坪

賃料(共益費含)


入居日

募集終了

保証金

礼金

更新料

償却費

竣工

2022年9月

構造

S造

規模

地上8階

トイレ

男女別

空調

エレベーター

セキュリティ

駐車場

耐震

新耐震基準

基準階天井高

空室延床面積

22.21坪

最寄駅

情報更新日

2025/10/02

THE CITY 神田神保町のテナント募集中区画

階数 面積 賃料(共益費含む) 保証金 入居可能日 検討リスト 詳細
2 22.21坪 462,000円/月(20,802円/坪) 240万円 2026年1月上旬
…新着物件

アクセス

THE CITY 神田神保町の物件情報

THE CITY 神田神保町(千代田区神田神保町)は神保町駅(A2番出口)から徒歩2分の賃貸オフィスです。
THE CITY 神田神保町は神保町駅(A2番出口)の他に九段下駅(6番出口)徒歩8分、水道橋駅(東口)徒歩9分で利用も可能です。

近隣のエリア・駅から探す