つり人社ビル 3階
物件概要
物件番号
402-00438-1物件名
つり人社ビル所在地
- 東京都千代田区神田神保町1-30-13
- アクセスマップ
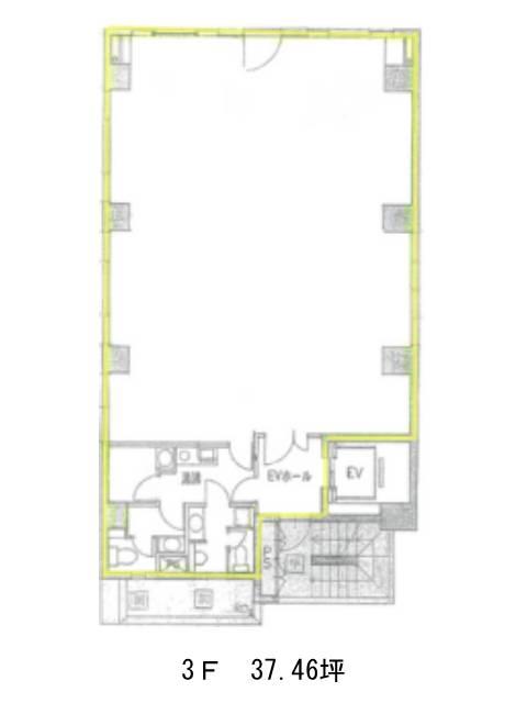
面積
37.46坪賃料(共益費含)
月額659,296円(17,600円/坪)
入居日
即保証金
3,146,640円礼金
なし更新料
新1ケ月償却費
2ケ月竣工
1998年3月構造
RC規模
地上5階/地下1階トイレ
男女別空調
個別空調エレベーター
有セキュリティ
駐車場
無耐震
新耐震基準基準階天井高
空室延床面積
37.46坪情報更新日
2025/08/25つり人社ビルのテナント募集中区画
| 階数 | 面積 | 賃料(共益費含む) | 保証金 | 入居可能日 | 検討リスト | 詳細 |
|---|---|---|---|---|---|---|
| 3 | 37.46坪 | 659,296円/月(17,600円/坪) | 314万円 | 即 |
…新着物件
アクセス
つり人社ビルの物件情報
つり人社ビル(千代田区神田神保町)は神保町駅(A5番出口)から徒歩3分の賃貸オフィスです。つり人社ビルは神保町駅(A5番出口)の他に御茶ノ水駅(御茶ノ水橋口)徒歩9分、新御茶ノ水駅(B3a番出口)徒歩9分で利用も可能です。

