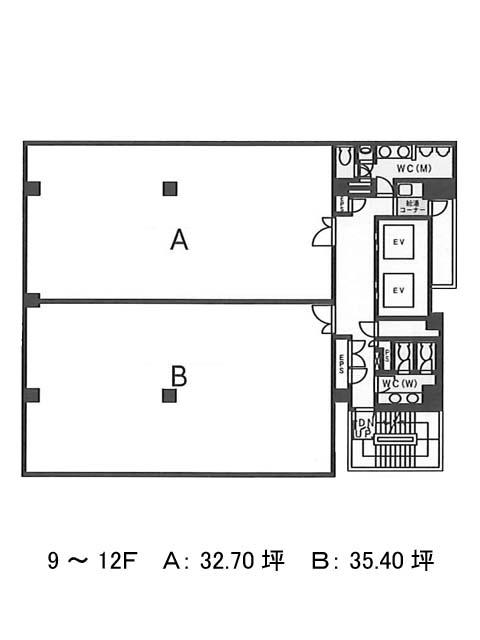
12階 12Bは現在募集がありません
GYB秋葉原 12階 12B
物件概要
GYB秋葉原のテナント募集中区画
現在、空室がございません。
アクセス
GYB秋葉原の物件情報
GYB秋葉原(千代田区神田須田町)は岩本町駅(A6番出口)から徒歩2分の賃貸オフィスです。GYB秋葉原は岩本町駅(A6番出口)の他に秋葉原駅(5番出口)徒歩2分、神田駅(6番出口)徒歩8分で利用も可能です。

