8階は現在募集がありません
アルカディアビル 8階


物件概要
アルカディアビルのテナント募集中区画
現在、空室がございません。
アクセス
アルカディアビルの物件情報
アルカディアビル(千代田区神田須田町)は小川町駅(A1番出口)から徒歩2分の賃貸オフィスです。
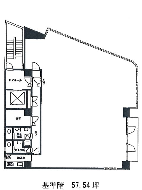
1982年竣工、地上9階建てS造のビル、新耐震基準になります。黒みがかったガラス窓でスタイリッシュな外観をしています。設備仕様として、EV1基・非常階段1箇所・OAフロア・貸室外の男女別トイレ・給湯室がそろいます。空調は個別空調を導入しています。大きな窓からの二面採光で、室内に十分な明るさが取り入れられるでしょう。
アルカディアビルは小川町駅(A1番出口)の他に淡路町駅(A1番出口)徒歩2分、神田駅(6番出口)徒歩3分で利用も可能です。