9階 901は現在募集がありません
相鉄万世橋ビル 9階 901
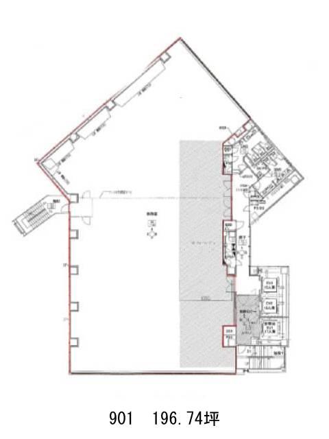
物件概要
相鉄万世橋ビルのテナント募集中区画
現在、空室がございません。
アクセス
相鉄万世橋ビルの物件情報
相鉄万世橋ビル(千代田区神田須田町)は神田駅(6番出口)から徒歩3分の賃貸オフィスです。2015年竣工で、新耐震基準に適合した地上9階建てのとても綺麗なビルです。外観はガラス張りで視認性が高く、非常用発電機を備えているビルですので、いざという時にも最低限の業務を続けることができます。貸室内はフリーアクセス床となっているので、配線しやすいフロアです。トイレは男女別の設置となっています。機械式駐車場利用可能のため、車を使用する場合には便利です。徒歩圏内にコンビニエンスストアや郵便局がございます。相鉄万世橋ビルは神田駅(6番出口)の他に小川町駅(A1番出口)徒歩4分、淡路町駅(A1番出口)徒歩4分で利用も可能です。

