1階は現在募集がありません
東京神田須田町ビル 1階
物件概要
東京神田須田町ビルのテナント募集中区画
現在、空室がございません。
アクセス
東京神田須田町ビルの物件情報
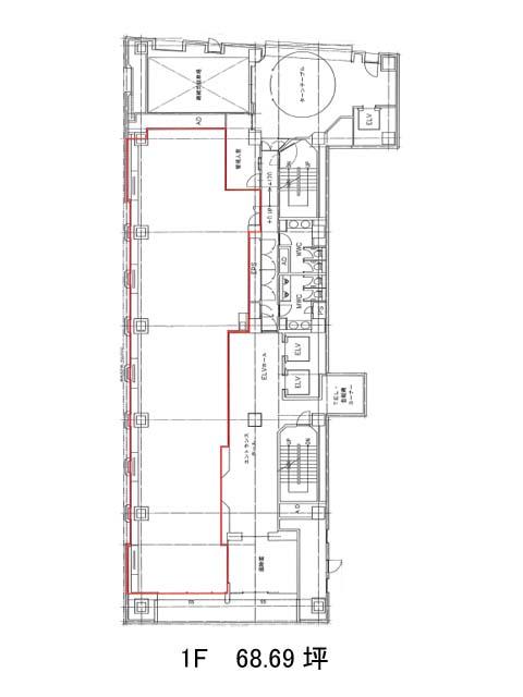
東京神田須田町ビル(千代田区神田須田町)は岩本町駅(A2番出口)から徒歩3分の賃貸オフィスです。靖国通りに面した角地に立地しているビルです。外観はライトグレーの石張りに開放的なエントランスが特徴的で視認性の高い物件です。間取りは長方形に近いL字型ですが無柱空間なので、レイアウトの幅は広いでしょう。室外には男女別トイレと給湯室があるので、快適に過ごせます。隣のビルにはコンビニがあり、神田らしく周りにはカレー屋が多数あるのでカレー好きにはたまりません。東京神田須田町ビルは岩本町駅(A2番出口)の他に神田駅(6番出口)徒歩4分、秋葉原駅(A1番出口)徒歩5分で利用も可能です。

