2階は現在募集がありません
1フロア募集区画あり

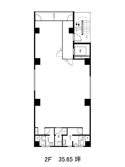
神田AKビル 2階

前の写真 次の写真

物件概要

物件番号

403-00005-122

物件名

神田AKビル

所在地

面積

35.65坪

賃料(共益費含)


入居日

募集終了

保証金

礼金

更新料

償却費

竣工

1978年9月

構造

SRC

規模

地上9階

トイレ

男女別

空調

個別空調

エレベーター

セキュリティ

駐車場

耐震

耐震補強済み

基準階天井高

空室延床面積

33.06坪

最寄駅

情報更新日

2025/11/05

神田AKビルのテナント募集中区画

階数 面積 賃料(共益費含む) 保証金 入居可能日 検討リスト 詳細
6 33.06坪 581,856円/月(17,600円/坪) 343万円 2025年12月上旬
…新着物件

アクセス

神田AKビルの物件情報

神田AKビル(千代田区神田須田町)は神田駅(5番出口)から徒歩1分の賃貸オフィスです。
中央通り沿いに建つオフィスビルです。外観はダークブラウンで落ち着いた印象を与えます。一階テナントが店舗なので目印にしやすいでしょう。室内はシンプルな長方形で、中央に柱もなく、オフィスとして使いやすい間取りです。窓が大きく、採光性もよく開放的です。機械警備、男女別トイレを備えています。ビル周辺は飲食店も多く立ち並び、コンビニや金融機関も近いので快適にお仕事できる環境です。
神田AKビルは神田駅(5番出口)の他に小川町駅(A1番出口)徒歩5分、淡路町駅(A1番出口)徒歩5分で利用も可能です。

近隣のエリア・駅から探す