6階は現在募集がありません
1フロア募集区画あり

村山ビル 6階

前の写真 次の写真

物件概要

物件番号

403-00089-50

物件名

村山ビル

所在地

面積

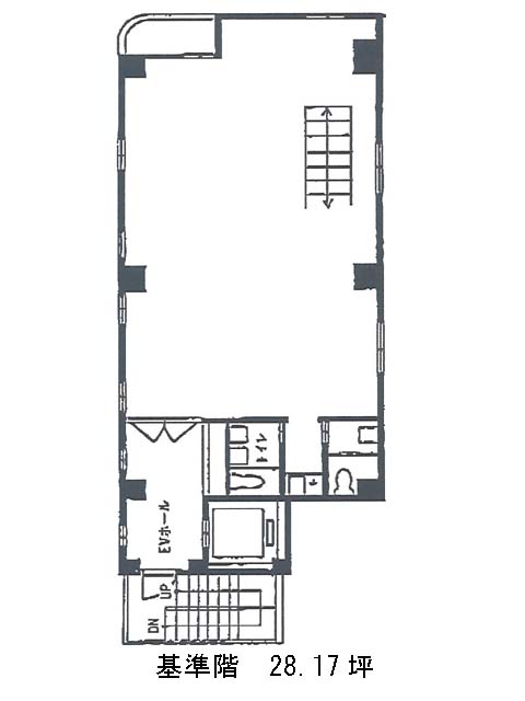
28.17坪

賃料(共益費含)


入居日

募集終了

保証金

礼金

更新料

償却費

竣工

1984年8月

構造

S造

規模

地上10階

トイレ

男女別

空調

個別空調

エレベーター

セキュリティ

駐車場

耐震

新耐震基準

基準階天井高

空室延床面積

28.17坪

最寄駅

情報更新日

2025/11/12

村山ビルのテナント募集中区画

階数 面積 賃料(共益費含む) 保証金 入居可能日 検討リスト 詳細
9 28.17坪 526,779円/月(18,700円/坪) 315万円
…新着物件

アクセス

村山ビルの物件情報

村山ビル(千代田区神田須田町)は神田駅(6番出口)から徒歩3分の賃貸オフィスです。
村山ビルは神田駅(6番出口)の他に小川町駅(A1番出口)徒歩4分、淡路町駅(A1番出口)徒歩4分で利用も可能です。

近隣のエリア・駅から探す