2階は現在募集がありません
NO.3ハヤカワビル 2階
物件概要
NO.3ハヤカワビルのテナント募集中区画
現在、空室がございません。
アクセス
NO.3ハヤカワビルの物件情報
NO.3ハヤカワビル(千代田区神田多町)は神田駅(4番出口)から徒歩3分の賃貸オフィスです。地上9階建て、堅実な印象の当ビルは、最寄り駅からほど近く周辺には飲食店やコンビニエンスストア、駐車場が点在する便利な立地です。
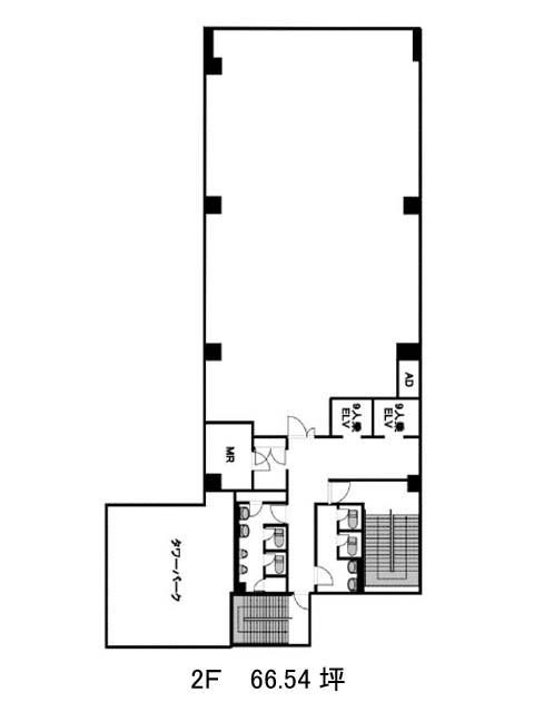
基準階はシンプルな長方形の無柱空間で、レイアウトの自由度が高く、作業効率の良いオフィス設計が可能。柱による視線の遮りや動線の制約がなく、執務スペースや会議室の配置にも柔軟に対応できます。
エレベーターは2基設置されており、混雑しがちな時間帯の昇降もスムーズ。アクセス面だけでなく、日々の業務運用においてもストレスの少ない設計が魅力です。交通利便性と実用性をバランスよく備えた、コンパクトかつ効率的なオフィス物件です。NO.3ハヤカワビルは神田駅(4番出口)の他に淡路町駅(A1番出口)徒歩5分、小川町駅(A1番出口)徒歩5分で利用も可能です。

