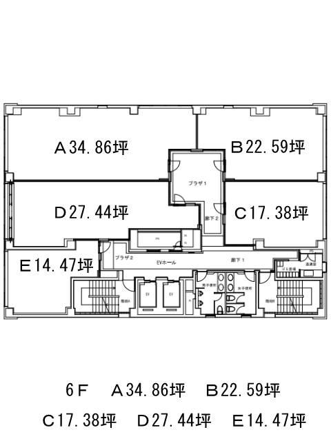
神田プラザビルのテナント募集中区画
| 階数 | 面積 | 賃料(共益費含む) | 保証金 | 入居可能日 | 検討リスト | 詳細 |
|---|---|---|---|---|---|---|
| 3 | 22.59坪 | 応相談(応相談) | 応相談 | 即 | ||
| 3 | 27.44坪 | 905,520円/月(33,000円/坪) | 740万円 | 即 | ||
| 6 | 34.86坪 | 応相談(応相談) | 応相談 | 即 | ||
| 6 | 22.59坪 | 応相談(応相談) | 応相談 | 即 |
…新着物件
アクセス
神田プラザビルの物件情報
神田プラザビル(千代田区神田東松下町)は岩本町駅(A5番出口)から徒歩3分の賃貸オフィスです。神田プラザビルは岩本町駅(A5番出口)の他に神田駅(2番出口)徒歩5分、秋葉原駅(5番出口)徒歩5分で利用も可能です。

