5階は現在募集がありません
1フロア募集区画あり

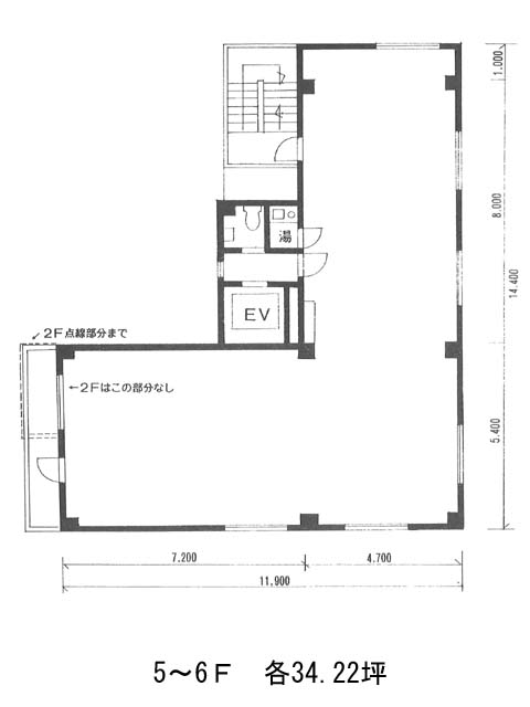
神田SYビル 5階

前の写真 次の写真

物件概要

物件番号

410-00002-20

物件名

神田SYビル

所在地

面積

34.22坪

賃料(共益費含)


入居日

募集終了

保証金

礼金

更新料

償却費

竣工

1993年3月

構造

S造

規模

地上7階/地下1階

トイレ

男女別

空調

個別空調

エレベーター

セキュリティ

駐車場

耐震

新耐震基準

基準階天井高

空室延床面積

30.24坪

最寄駅

情報更新日

2025/11/21

神田SYビルのテナント募集中区画

階数 面積 賃料(共益費含む) 保証金 入居可能日 検討リスト 詳細
6 30.24坪 465,696円/月(15,400円/坪) 347万円
…新着物件

アクセス

神田SYビルの物件情報

神田SYビル(千代田区神田東松下町)は岩本町駅(A1番出口)から徒歩3分の賃貸オフィスです。
神田SYビルは岩本町駅(A1番出口)の他に秋葉原駅(5番出口)徒歩5分、神田駅(5番出口)徒歩6分で利用も可能です。

近隣のエリア・駅から探す