5階は現在募集がありません
第2日成ビル 5階
物件概要
第2日成ビルのテナント募集中区画
現在、空室がございません。
アクセス
第2日成ビルの物件情報
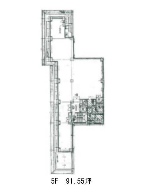
第2日成ビル(千代田区神田美土代町)は小川町駅(B6番出口)から徒歩3分の賃貸オフィスです。1985年竣工の新耐震基準を満たした物件でございます。整形されたフロアで柔軟な空間構成、レイアウト変更が可能です。また複数方向から外光が入ってくるため、明るいフロアとなるでしょう。フリーアクセスの床になっており、セキュリティは機械式警備システムを採用しています。付近には、飲食店が充実しており、ランチなどの食事には困らないでしょう。コンビニもございますので便利なエリアです。第2日成ビルは小川町駅(B6番出口)の他に新御茶ノ水駅(B6番出口)徒歩3分、淡路町駅(A6番出口)徒歩4分で利用も可能です。

