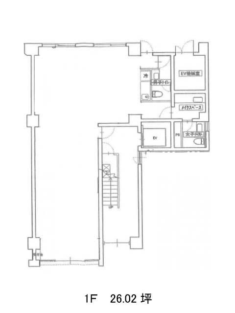
1階は現在募集がありません
S-Glanz AKIHABARA 1階
物件概要
S-Glanz AKIHABARAのテナント募集中区画
現在、空室がございません。
アクセス
S-Glanz AKIHABARAの物件情報
S-Glanz AKIHABARA(千代田区神田和泉町)は秋葉原駅(1番出口)から徒歩3分の賃貸オフィスです。1985年竣工、鉄筋コンクリート造・地上5階建てのビルです。2019年にリニューアル工事が実施されております。新耐震基準に適合しているので、安心してご入居いただけます。基準階面積は約60坪。男女別トイレ、機械警備完備、平置きの駐車場が併設されています。大通りから一本入ったところに位置しておりますので落ち着いた環境です。徒歩圏内にコンビニやカフェ、銀行がございますので、利便性が高いエリアでしょう。S-Glanz AKIHABARAは秋葉原駅(1番出口)の他に岩本町駅(A4番出口)徒歩7分、浅草橋駅(西口)徒歩10分で利用も可能です。

