6階は現在募集がありません
末広ビル 6階
物件概要
末広ビルのテナント募集中区画
現在、空室がございません。
アクセス
末広ビルの物件情報
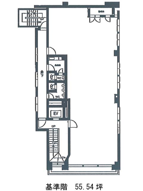
末広ビル(千代田区神田和泉町)は秋葉原駅(1番出口)から徒歩4分の賃貸オフィスです。1978年竣工、鉄骨鉄筋コンクリート造・地上9階建てのビルです。ブラウンを基調とした外観が重厚感を高めています。エントランスはガラス張りで明るい印象の為、来訪者にも好印象でしょう。基準階面積は約60坪。貸室内はほぼ長方形に近い形状の為、レイアウトの自由度も高いでしょう。設備面は男女別トイレ設置、個別空調、機械警備導入、エレベーターは1基設置されています。周辺にはコンビニやカフェ、多数の飲食店があるので食事をする際にも便利です。末広ビルは秋葉原駅(1番出口)の他に岩本町駅(A4番出口)徒歩7分、浅草橋駅(西口)徒歩9分で利用も可能です。

