7階は現在募集がありません
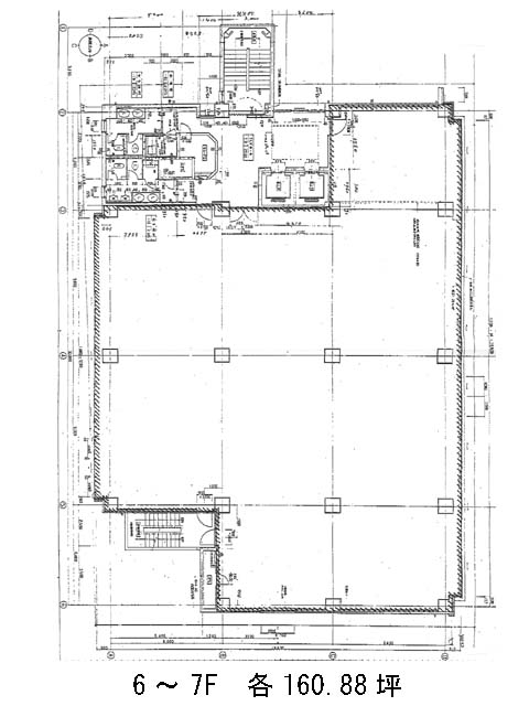
神田91ビル 7階
物件概要
神田91ビルのテナント募集中区画
現在、空室がございません。
アクセス
神田91ビルの物件情報
神田91ビル(千代田区鍛冶町)は神田駅(南口)から徒歩3分の賃貸オフィスです。神田91ビルは神田駅(南口)の他に新日本橋駅(4番出口)徒歩4分、三越前駅(A10番出口)徒歩6分で利用も可能です。

