6階は現在募集がありません
BIGS東神田 6階
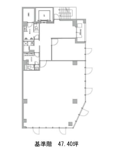
物件概要
BIGS東神田のテナント募集中区画
現在、空室がございません。
アクセス
BIGS東神田の物件情報
BIGS東神田(千代田区東神田)は馬喰町駅(2番出口)から徒歩3分の賃貸オフィスです。BIGS東神田は馬喰町駅(2番出口)の他に馬喰横山駅(A1番出口)徒歩5分、小伝馬町駅(出口)徒歩5分で利用も可能です。

