1階は現在募集がありません
TQ東神田 1階
物件概要
物件番号
421-00098-20物件名
TQ東神田所在地
- 東京都千代田区東神田1-11-14
- アクセスマップ
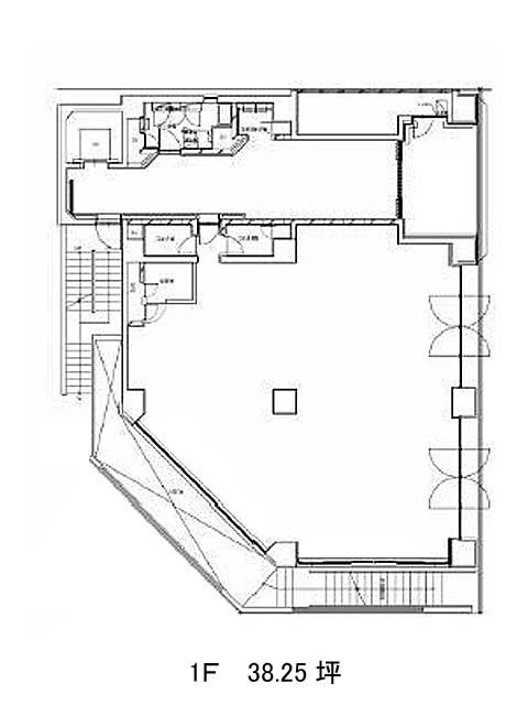
面積
38.25坪賃料(共益費含)
−入居日
募集終了保証金
−礼金
−更新料
−償却費
−竣工
1989年9月構造
SRC規模
地上8階/地下2階トイレ
男女別空調
個別空調エレベーター
有セキュリティ
有駐車場
無耐震
新耐震基準基準階天井高
2770(一部2830,1F2470)mm空室延床面積
−情報更新日
2025/10/27TQ東神田のテナント募集中区画
現在、空室がございません。
アクセス
TQ東神田の物件情報
TQ東神田(千代田区東神田)は馬喰町駅(4番出口)から徒歩4分の賃貸オフィスです。1989年竣工、地上8階地下2階建てSRC造のビルです。グレーの外壁で重厚感のある外観デザインをしています。基準階面積は60.89坪。フロアの一部に共用部が集まっており、使い勝手がよいでしょう。設備仕様としては、EV1基・機械警備・OAフロア(1階以外)・男女別トイレ・バルコニーがそろいます。空調は個別空調が導入されています。2017年、共用部のリニューアルが実施されており心地よい使い勝手が保たれています。TQ東神田は馬喰町駅(4番出口)の他に馬喰横山駅(A1番出口)徒歩6分、岩本町駅(A4番出口)徒歩7分で利用も可能です。

