センボービルのテナント募集中区画
| 階数 | 面積 | 賃料(共益費含む) | 保証金 | 入居可能日 | 検討リスト | 詳細 |
|---|---|---|---|---|---|---|
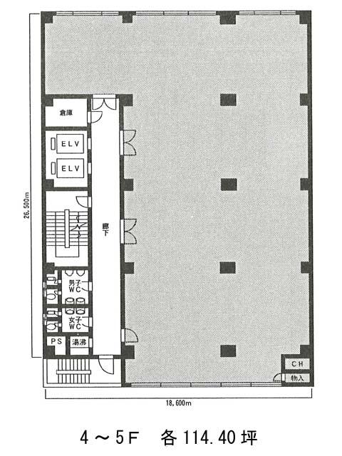
| 3 | 114.40坪 | 2,516,800円/月(22,000円/坪) | 1,491万円 | 即 |
…新着物件
アクセス
センボービルの物件情報
センボービル(千代田区内神田)は神田駅(北口)から徒歩4分の賃貸オフィスです。飲食店が立ち並ぶにぎやかな神田エリアに位置する当ビルは、オフィスらしい端正な外観が印象的な建物です。前面は通りにしっかりと面しており、周囲にも多様な店舗が並ぶため、日常の利便性も高めです。
基準階は約114坪と十分な広さがあり、ワンフロアでのゆとりある使い方が可能です。貸室内には柱が数本ありますが、広さを活かして個室や区画の工夫に繋げやすく、柔軟なレイアウトに対応できます。
水回りは共用部に配置されており、執務エリアをすっきり保ちやすい点も嬉しいところ。加えて、男女別トイレやOAフロア、個別空調、機械警備、さらには駐車場まで完備されており、基本設備も整っています。
機能面と利便性のバランスが取れた、実務にしっかり応える一棟です。
センボービルは神田駅(北口)の他に小川町駅(A2番出口)徒歩6分、淡路町駅(A2番出口)徒歩6分で利用も可能です。

