7階は現在募集がありません
1フロア募集区画あり

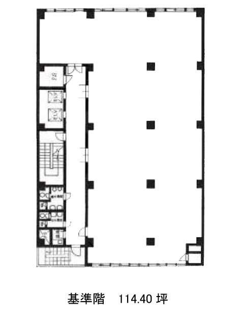
センボービル 7階

前の写真 次の写真

物件概要

物件番号

423-00161-42

物件名

センボービル

所在地

面積

114.40坪

賃料(共益費含)


入居日

募集終了

保証金

礼金

更新料

償却費

竣工

1966年11月

構造

SRC

規模

地上9階/地下3階

トイレ

男女別

空調

個別空調

エレベーター

セキュリティ

駐車場

耐震

耐震補強済み

基準階天井高

空室延床面積

114.40坪

最寄駅

情報更新日

2025/11/17

センボービルのテナント募集中区画

階数 面積 賃料(共益費含む) 保証金 入居可能日 検討リスト 詳細
3 114.40坪 2,516,800円/月(22,000円/坪) 1,491万円
…新着物件

アクセス

センボービルの物件情報

センボービル(千代田区内神田)は神田駅(北口)から徒歩4分の賃貸オフィスです。
飲食店が立ち並ぶにぎやかな神田エリアに位置する当ビルは、オフィスらしい端正な外観が印象的な建物です。前面は通りにしっかりと面しており、周囲にも多様な店舗が並ぶため、日常の利便性も高めです。
基準階は約114坪と十分な広さがあり、ワンフロアでのゆとりある使い方が可能です。貸室内には柱が数本ありますが、広さを活かして個室や区画の工夫に繋げやすく、柔軟なレイアウトに対応できます。
水回りは共用部に配置されており、執務エリアをすっきり保ちやすい点も嬉しいところ。加えて、男女別トイレやOAフロア、個別空調、機械警備、さらには駐車場まで完備されており、基本設備も整っています。
機能面と利便性のバランスが取れた、実務にしっかり応える一棟です。


センボービルは神田駅(北口)の他に小川町駅(A2番出口)徒歩6分、淡路町駅(A2番出口)徒歩6分で利用も可能です。

近隣のエリア・駅から探す