3階は現在募集がありません
伊田ビル 3階
物件概要
伊田ビルのテナント募集中区画
現在、空室がございません。
アクセス
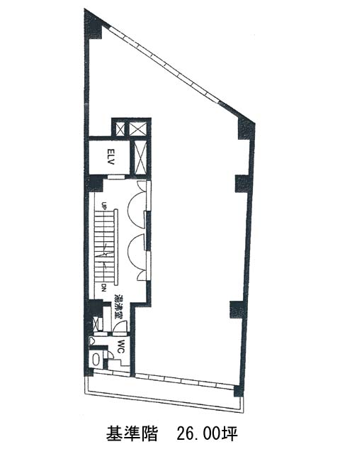
伊田ビルの物件情報
伊田ビル(千代田区内神田)は神田駅(南口)から徒歩3分の賃貸オフィスです。伊田ビルは神田駅(南口)の他に大手町駅(A2番出口)徒歩6分、新日本橋駅(2番出口)徒歩7分で利用も可能です。

