4階は現在募集がありません
アドミラル神田ビル 4階
物件概要
アドミラル神田ビルのテナント募集中区画
現在、空室がございません。
アクセス
アドミラル神田ビルの物件情報
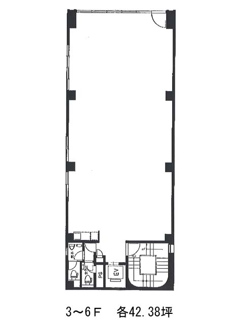
アドミラル神田ビル(千代田区内神田)は神田駅(1番出口)から徒歩2分の賃貸オフィスです。神田駅が最寄り駅となりますが、淡路町駅、小川町駅、新日本橋駅、三越前駅が徒歩10分圏内と交通に便利です。1973年竣工ですが2005年に内外装をリニューアルした物件です。専用の給湯スペース、男女別トイレが室内にあります。床から天井までの大きな窓面で室内への採光も良好です。室内はOAフロアを採用しています。また無柱空間のためレイアウト効率が高いでしょう。周辺には多数の飲食店、銀行、郵便局もあり大変利便性の高い環境です。アドミラル神田ビルは神田駅(1番出口)の他に淡路町駅(A1番出口)徒歩7分、小川町駅(A1番出口)徒歩7分で利用も可能です。

