4階は現在募集がありません
ATS大手町ビル 4階
物件概要
ATS大手町ビルのテナント募集中区画
現在、空室がございません。
アクセス
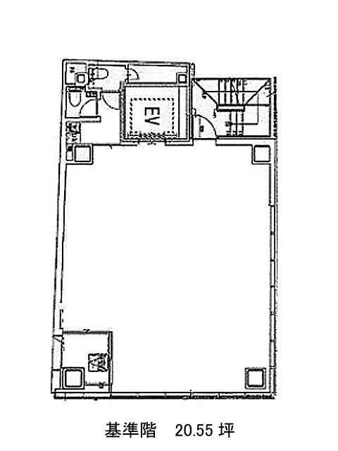
ATS大手町ビルの物件情報
ATS大手町ビル(千代田区内神田)は大手町駅(C2b番出口)から徒歩6分の賃貸オフィスです。ATS大手町ビルは大手町駅(C2b番出口)の他に新御茶ノ水駅(B6番出口)徒歩6分、小川町駅(B6番出口)徒歩6分で利用も可能です。

