3階は現在募集がありません
産広美工ビル 3階
物件概要
産広美工ビルのテナント募集中区画
現在、空室がございません。
アクセス
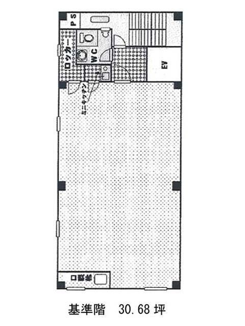
産広美工ビルの物件情報
産広美工ビル(千代田区内神田)は大手町駅(C2b番出口)から徒歩4分の賃貸オフィスです。
産広美工ビルは大手町駅(C2b番出口)の他に新御茶ノ水駅(B6番出口)徒歩6分、小川町駅(B6番出口)徒歩6分で利用も可能です。

