7階は現在募集がありません
関電不動産八重洲ビル 7階
物件概要
関電不動産八重洲ビルのテナント募集中区画
現在、空室がございません。
アクセス
関電不動産八重洲ビルの物件情報
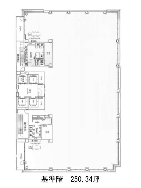
関電不動産八重洲ビル(中央区京橋)は宝町駅(A8番出口)から徒歩4分の賃貸オフィスです。2022年竣工の築浅物件で比較的新しく、八重洲通り沿いの角地に立地しているため通風良好です。また地上13階建てなので、上層階からの眺望はとても良好です。基準階面積は約250坪と大変広く、室内は長方形の形をしているので、レイアウトもしやすいでしょう。ビル内にはエレベーターや駐車場もあり、男女トイレも別となっております。徒歩圏内にはコンビニが複数あるのでちょっとした買い物には困らないでしょう。関電不動産八重洲ビルは宝町駅(A8番出口)の他に日本橋駅(B3番出口)徒歩6分、京橋駅(7番出口)徒歩6分で利用も可能です。

