銀座木挽町ビルのテナント募集中区画
| 階数 | 面積 | 賃料(共益費含む) | 保証金 | 入居可能日 | 検討リスト | 詳細 |
|---|---|---|---|---|---|---|
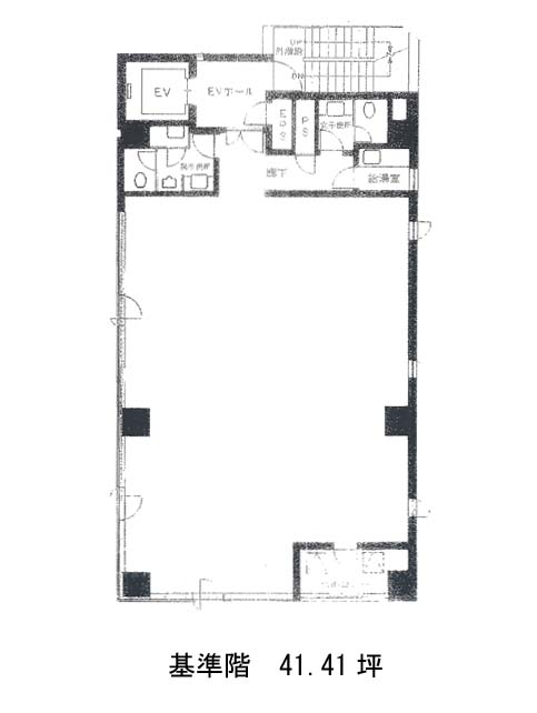
| 5 | 41.41坪 | 888,230円/月(21,451円/坪) | 662万円 | 即 |
…新着物件
アクセス
銀座木挽町ビルの物件情報
銀座木挽町ビル(中央区銀座)は築地市場駅(A3番出口)から徒歩3分の賃貸オフィスです。地上10階建ての物件ということもあり、上層階からの眺望は良好です。外観は全体的にグレー系の色合いをしており、とてもシンプルな構造になっております。また周辺には、コンビニはもちろん飲食店が数多くあるため、昼食や夕食時などにたくさんのお料理が楽しめるでしょう。ビル内にはOAフロアが備えられており、トイレは男女別で、駐車場もあるため、社用車を使う場合も便利です。光ファイバーも引き込み済みでセキュリティは機械警備を導入しているため、安心です。銀座木挽町ビルは築地市場駅(A3番出口)の他に東銀座駅(出口)徒歩6分、汐留駅(3番出口)徒歩6分で利用も可能です。

