8階は現在募集がありません
1フロア募集区画あり

銀座木挽町ビル 8階

前の写真 次の写真

物件概要

物件番号

634-00105-60

物件名

銀座木挽町ビル

所在地

面積

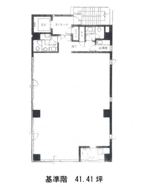
41.41坪

賃料(共益費含)


入居日

募集終了

保証金

礼金

更新料

償却費

竣工

1994年3月

構造

SRC

規模

地上10階

トイレ

男女別

空調

個別空調

エレベーター

セキュリティ

駐車場

耐震

新耐震基準

基準階天井高

2600mm

空室延床面積

41.41坪

最寄駅

情報更新日

2025/09/05

銀座木挽町ビルのテナント募集中区画

階数 面積 賃料(共益費含む) 保証金 入居可能日 検討リスト 詳細
5 41.41坪 888,230円/月(21,451円/坪) 662万円
…新着物件

アクセス

銀座木挽町ビルの物件情報

銀座木挽町ビル(中央区銀座)は築地市場駅(A3番出口)から徒歩3分の賃貸オフィスです。
地上10階建ての物件ということもあり、上層階からの眺望は良好です。外観は全体的にグレー系の色合いをしており、とてもシンプルな構造になっております。また周辺には、コンビニはもちろん飲食店が数多くあるため、昼食や夕食時などにたくさんのお料理が楽しめるでしょう。ビル内にはOAフロアが備えられており、トイレは男女別で、駐車場もあるため、社用車を使う場合も便利です。光ファイバーも引き込み済みでセキュリティは機械警備を導入しているため、安心です。
銀座木挽町ビルは築地市場駅(A3番出口)の他に東銀座駅(出口)徒歩6分、汐留駅(3番出口)徒歩6分で利用も可能です。

近隣のエリア・駅から探す