銀座小寺ビル 5階
物件概要
物件番号
634-01055-30物件名
銀座小寺ビル所在地
- 東京都中央区銀座8-14-5
- アクセスマップ
面積
27.00坪賃料(共益費含)
月額579,150円(21,450円/坪)
入居日
即保証金
2,673,000円礼金
なし更新料
新1ケ月償却費
なし竣工
2009年7月構造
RC規模
地上6階/地下1階トイレ
男女別空調
個別空調エレベーター
有セキュリティ
有駐車場
無耐震
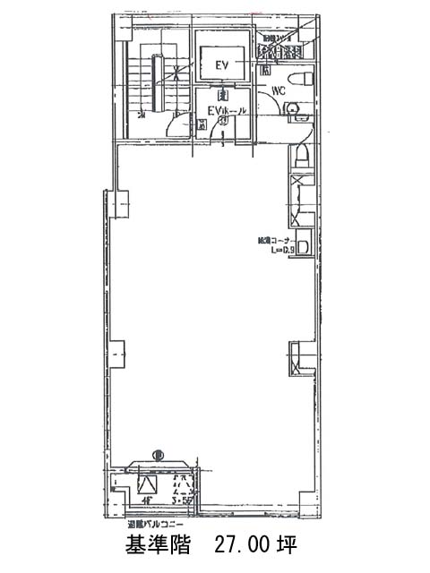
新耐震基準基準階天井高
2600mm空室延床面積
27.00坪情報更新日
2025/11/10銀座小寺ビルのテナント募集中区画
| 階数 | 面積 | 賃料(共益費含む) | 保証金 | 入居可能日 | 検討リスト | 詳細 |
|---|---|---|---|---|---|---|
| 5 | 27.00坪 | 579,150円/月(21,450円/坪) | 267万円 | 即 |
…新着物件
アクセス
銀座小寺ビルの物件情報
銀座小寺ビル(中央区銀座)は築地市場駅(A3番出口)から徒歩4分の賃貸オフィスです。銀座エリアでコンパクトオフィスをお探しの方には、当ビルも検討候補に加えたい一棟です。
石材を基調とした外観と共用部が、堅実で信頼感のある印象を演出。
基準階は約27坪とコンパクトながら、男女別トイレや給湯スペースをしっかり備え、働きやすさに配慮された設計です。エレベーターホールも独立しており、来客対応や動線面でも安心感があります。整った長方形の貸室はレイアウト自由度が高く、少人数体制の拠点や士業・コンサルなどの業種にもフィット。本物件が位置するのは、新橋のビジネスエリアとしての落ち着きと、華やかな銀座エリアの両方を享受できる絶妙な立地。利便性と品の良さを兼ね備えた、バランス感覚のある物件です。銀座小寺ビルは築地市場駅(A3番出口)の他に汐留駅(3番出口)徒歩6分、東銀座駅(4番出口)徒歩6分で利用も可能です。

