5階は現在募集がありません
日総第26ビル 5階
物件概要
日総第26ビルのテナント募集中区画
現在、空室がございません。
アクセス
日総第26ビルの物件情報
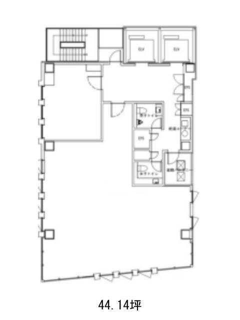
日総第26ビル(中央区銀座)は東銀座駅(A1番出口)から徒歩2分の賃貸オフィスです。2023年9月竣工、地上12階建てS造のビルです。スラリとそびえたつスタイリッシュな外観をしています。ワンフロアワンテナントで、各階面積は44.14坪。中規模の事務所をお探しの方によいでしょう。貸室は支柱が中央にないすっきりとした間取りです。設備仕様として、EV2基・個別空調・貸室外の男女別トイレがそろいます。8階にラウンジ、9階にオフィスコンビニが入りリフレッシュにご利用頂けるでしょう。10階はスケルトンでの引き渡しとなります。日総第26ビルは東銀座駅(A1番出口)の他に銀座駅(A5番出口)徒歩3分、銀座一丁目駅(11番出口)徒歩7分で利用も可能です。

