1階 101は現在募集がありません
1フロア募集区画あり

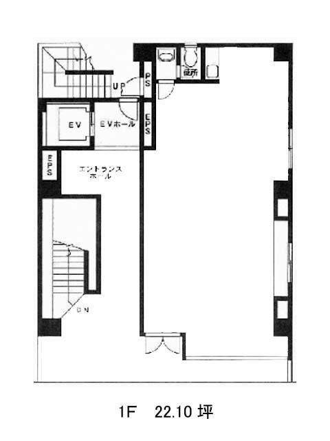
銀座中央ビル 1階 101

前の写真 次の写真

物件概要

物件番号

634-00163-30

物件名

銀座中央ビル

所在地

面積

22.10坪

賃料(共益費含)


入居日

募集終了

保証金

礼金

更新料

償却費

竣工

1989年6月

構造

SRC

規模

地上8階/地下1階

トイレ

男女共用

空調

個別空調

エレベーター

セキュリティ

駐車場

耐震

新耐震基準

基準階天井高

2450~2920mm

空室延床面積

33.69坪

最寄駅

情報更新日

2026/01/16

銀座中央ビルのテナント募集中区画

階数 面積 賃料(共益費含む) 保証金 入居可能日 検討リスト 詳細
2 33.69坪 応相談(応相談) 応相談
…新着物件

アクセス

銀座中央ビルの物件情報

銀座中央ビル(中央区銀座)は築地市場駅(A3番出口)から徒歩5分の賃貸オフィスです。
銀座中央ビルは築地市場駅(A3番出口)の他に汐留駅(3番出口)徒歩6分、東銀座駅(出口)徒歩7分で利用も可能です。

近隣のエリア・駅から探す