8階は現在募集がありません
東武銀座第1ビル 8階
物件概要
東武銀座第1ビルのテナント募集中区画
現在、空室がございません。
アクセス
東武銀座第1ビルの物件情報
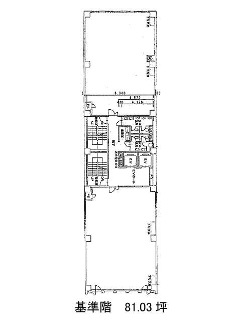
東武銀座第1ビル(中央区銀座)は東銀座駅(A1番出口)から徒歩3分の賃貸オフィスです。昭和通りに面して建てられているビルです。外観は茶色のパネル貼りで1階にはカフェが入っているので来客者への目印になるでしょう。募集時期やフロアにより分割区画もございます。各フロアには男女別のトイレと給湯室があります。間取りはほぼ長方形で床はフリーアクセスのためレイアウトはしやすいでしょう。周辺は飲食店や商業施設が豊富でコンビニとドラッグストアが徒歩圏内にあり、ギンザシックスが近くで仕事後のお買い物も楽しめるでしょう。東武銀座第1ビルは東銀座駅(A1番出口)の他に銀座駅(A5番出口)徒歩5分、汐留駅(3番出口)徒歩8分で利用も可能です。

