3階は現在募集がありません
矢島ビル 3階
物件概要
矢島ビルのテナント募集中区画
現在、空室がございません。
アクセス
矢島ビルの物件情報
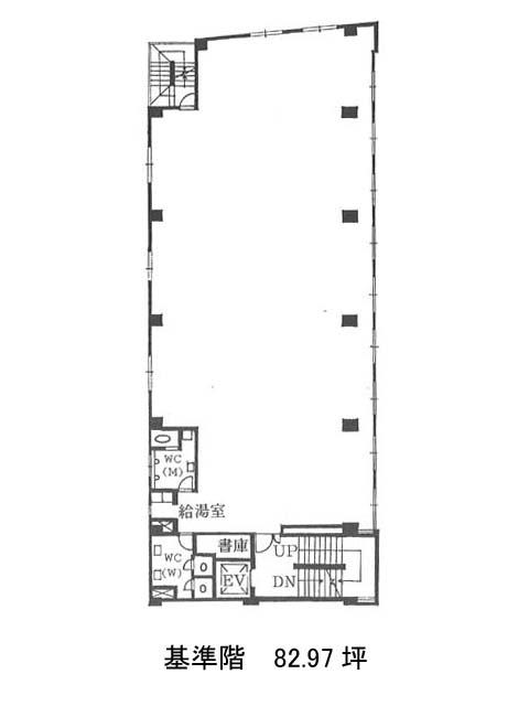
矢島ビル(中央区銀座)は東銀座駅(A1番出口)から徒歩4分の賃貸オフィスです。中央通りと昭和通りの中間ほどに立地しているビルです。外観はベージュのタイル張りに大きな窓が特徴的な物件です。角地にあるため、採光性は高いでしょう。室内は長方形の間取りで男女別のトイレがあります。セキュリティは機械警備を導入しています。周辺はコンビニが多数あり、飲食店の数も多いので、ランチタイムはお店選びに苦労しないです。徒歩圏内にはGINZASIX、三越、松屋銀座などもあるので、仕事終わりなどに買い物が楽しめます。矢島ビルは東銀座駅(A1番出口)の他に銀座駅(A5番出口)徒歩5分、新橋駅(1番出口)徒歩7分で利用も可能です。

