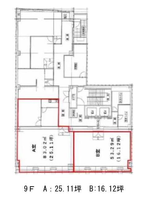
9階 Aは現在募集がありません
銀座K-18ビル 9階 A
物件概要
銀座K-18ビルのテナント募集中区画
現在、空室がございません。
アクセス
銀座K-18ビルの物件情報
銀座K-18ビル(中央区銀座)は新橋駅(1番出口)から徒歩4分の賃貸オフィスです。中央通りに面して建てられているビルです。外観はブラウンのコンクリート状で窓と壁面が同じ大きさで並んでいるのでチョコレートのような見た目が印象的な視認性の高い物件です。男女別のトイレは室外にあります。床はフリーアクセスのためレイアウトはしやすいでしょう。周辺はブランドショップが並ぶ銀座ならではの街並み、交通量が多い通りです。徒歩圏内にコンビニ、シティホテル、銀行、郵便局があり、ビジネス環境も良好です。銀座K-18ビルは新橋駅(1番出口)の他に汐留駅(3番出口)徒歩5分、銀座駅(A4番出口)徒歩6分で利用も可能です。

