7階は現在募集がありません
GM-Gビル 7階
物件概要
GM-Gビルのテナント募集中区画
現在、空室がございません。
アクセス
GM-Gビルの物件情報
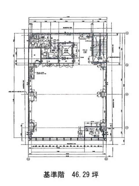
GM-Gビル(中央区銀座)は銀座一丁目駅(6番出口)から徒歩2分の賃貸オフィスです。竣工2007年の物件ということもあり、比較的建物自体は綺麗です。外観は全体的にベージュを基調とした石造りとなっており、とても暖かい印象があります。基準階は約46坪あり、室内は正方形に近い形をしているため、比較的レイアウトはしやすいでしょう。ビル内のトイレは男女別となっております。また周辺には、コンビニや飲食店、銀行などが複数あるためとても利便性が高いです。GM-Gビルは銀座一丁目駅(6番出口)の他に銀座駅(A13番出口)徒歩3分、京橋駅(3番出口)徒歩5分で利用も可能です。

