2階は現在募集がありません
新川むさしやビル 2階
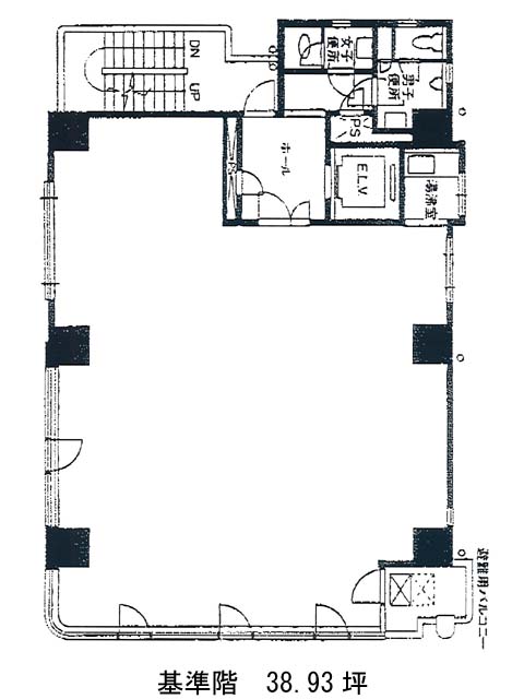
物件概要
新川むさしやビルのテナント募集中区画
現在、空室がございません。
アクセス
新川むさしやビルの物件情報
新川むさしやビル(中央区新川)は茅場町駅(4B番出口)から徒歩3分の賃貸オフィスです。新川むさしやビルは茅場町駅(4B番出口)の他に水天宮前駅(2番出口)徒歩6分、八丁堀駅(A4番出口)徒歩8分で利用も可能です。

