NMF茅場町ビルのテナント募集中区画
| 階数 | 面積 | 賃料(共益費含む) | 保証金 | 入居可能日 | 検討リスト | 詳細 |
|---|---|---|---|---|---|---|
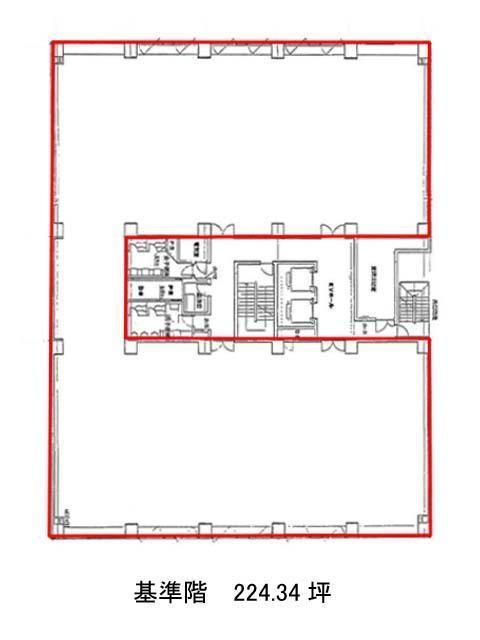
| 6 | 224.34坪 | 応相談(応相談) | 応相談 | 2026年1月上旬 |
…新着物件
アクセス
NMF茅場町ビルの物件情報
NMF茅場町ビル(中央区新川)は茅場町駅(4B番出口)から徒歩4分の賃貸オフィスです。外観は全体的に淡いグレーを基調としており、とてもシンプルな構造になっております。周辺には、コンビニや飲食店、郵便局などが複数あるためとても利便性が高いです。またビルの1Fにはスーパーが入っているため、帰宅時などに夕食の買い出しをしてから帰宅することもできます。ビル内のトイレは男女別となっており、駐車場もあるため、社用車を使う場合も便利です。基準階は約225坪あり、室内はコの字型の形をしていますが、柱は壁に沿ってあるため、比較的レイアウトは組みやすいでしょう。NMF茅場町ビルは茅場町駅(4B番出口)の他に水天宮前駅(2番出口)徒歩7分、八丁堀駅(B4番出口)徒歩9分で利用も可能です。

