3階は現在募集がありません
1フロア募集区画あり

NMF茅場町ビル 3階

前の写真 次の写真

物件概要

物件番号

637-00137-50

物件名

NMF茅場町ビル

所在地

面積

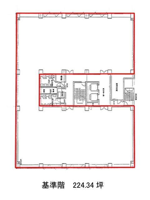
224.34坪

賃料(共益費含)


入居日

募集終了

保証金

礼金

更新料

償却費

竣工

1987年7月

構造

SRC

規模

地上9階/地下1階

トイレ

男女別

空調

個別空調

エレベーター

セキュリティ

駐車場

耐震

新耐震基準

基準階天井高

2450mm

空室延床面積

224.34坪

最寄駅

情報更新日

2025/11/06

NMF茅場町ビルのテナント募集中区画

階数 面積 賃料(共益費含む) 保証金 入居可能日 検討リスト 詳細
6 224.34坪 応相談(応相談) 応相談 2026年1月上旬
…新着物件

アクセス

NMF茅場町ビルの物件情報

NMF茅場町ビル(中央区新川)は茅場町駅(4B番出口)から徒歩4分の賃貸オフィスです。
外観は全体的に淡いグレーを基調としており、とてもシンプルな構造になっております。周辺には、コンビニや飲食店、郵便局などが複数あるためとても利便性が高いです。またビルの1Fにはスーパーが入っているため、帰宅時などに夕食の買い出しをしてから帰宅することもできます。ビル内のトイレは男女別となっており、駐車場もあるため、社用車を使う場合も便利です。基準階は約225坪あり、室内はコの字型の形をしていますが、柱は壁に沿ってあるため、比較的レイアウトは組みやすいでしょう。
NMF茅場町ビルは茅場町駅(4B番出口)の他に水天宮前駅(2番出口)徒歩7分、八丁堀駅(B4番出口)徒歩9分で利用も可能です。

近隣のエリア・駅から探す