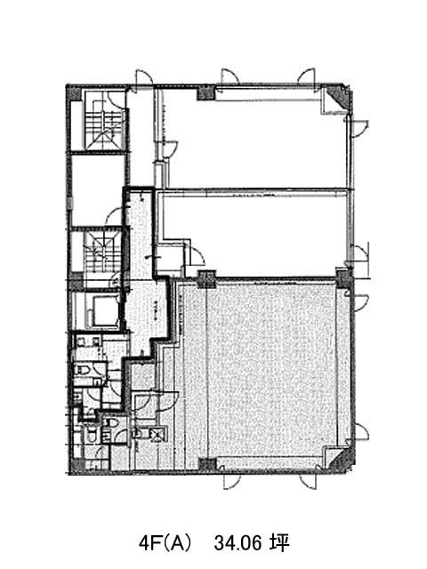
4階 4Aは現在募集がありません
新川1丁目ビル 4階 4A
物件概要
新川1丁目ビルのテナント募集中区画
現在、空室がございません。
アクセス
新川1丁目ビルの物件情報
新川1丁目ビル(中央区新川)は茅場町駅(4B番出口)から徒歩3分の賃貸オフィスです。永代通りを北へ少し入った角地にある、地上8階・地下3階建てのビルです。三方を静かな通りに囲まれた、開放的で落ち着いた環境です。1フロアを分割して貸し出している物件で、コンパクトな部屋は3坪ほど、広い部屋は70坪ほどあります。トイレは共用部分に男女別でありますが、室内に設置されている部屋もあります。床はフリーアクセスになっています。新川1丁目ビルは茅場町駅(4B番出口)の他に水天宮前駅(2番出口)徒歩7分、日本橋駅(D2番出口)徒歩9分で利用も可能です。

