4階は現在募集がありません
1フロア募集区画あり

三和商事ビル 4階

前の写真 次の写真

物件概要

物件番号

637-00038-40

物件名

三和商事ビル

所在地

面積

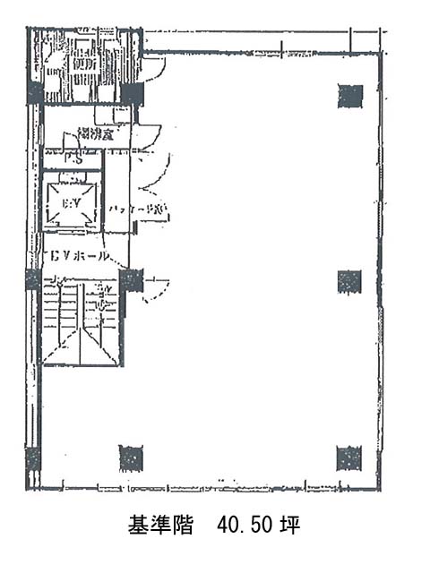
40.50坪

賃料(共益費含)


入居日

募集終了

保証金

礼金

更新料

償却費

竣工

1981年6月

構造

SRC

規模

地上9階

トイレ

男女別

空調

個別空調

エレベーター

セキュリティ

駐車場

耐震

旧耐震基準

基準階天井高

空室延床面積

40.50坪

最寄駅

情報更新日

2026/01/26

三和商事ビルのテナント募集中区画

階数 面積 賃料(共益費含む) 保証金 入居可能日 検討リスト 詳細
6 40.50坪 490,017円/月(12,100円/坪) 324万円
…新着物件

アクセス

三和商事ビルの物件情報

三和商事ビル(中央区新川)は水天宮前駅(2番出口)から徒歩8分の賃貸オフィスです。
永代通りからすぐの、隅田川に面した角地に建つ9階建てのビルです。眺望は抜群で、隅田川から対岸のビル群が臨めるほどに視界が開けています。基準階は40.50坪あり、室内に男女別トイレと給湯室があります。2005年にエントランスをリニューアル済みです。永代橋は、テレビドラマやお天気カメラのロケ地としてよく登場しています。夜になると、隅田川沿いの他の橋とともにライトアップされています。
三和商事ビルは水天宮前駅(2番出口)の他に茅場町駅(4B番出口)徒歩8分、八丁堀駅(B4番出口)徒歩9分で利用も可能です。

近隣のエリア・駅から探す