3階 Aは現在募集がありません
築地3丁目ビル 3階 A
物件概要
築地3丁目ビルのテナント募集中区画
現在、空室がございません。
アクセス
築地3丁目ビルの物件情報
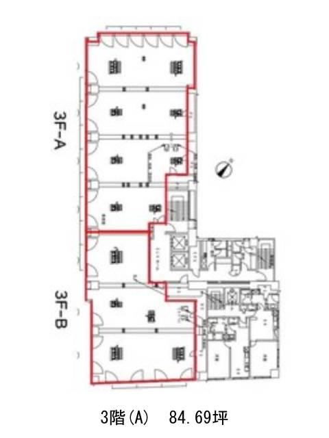
築地3丁目ビル(中央区築地)は築地駅(3番出口)から徒歩2分の賃貸オフィスです。1992年竣工、鉄骨鉄筋コンクリート造の地上9階、地下1階建の建物です。外観は、ブラウンを基調としたタイル張りで、スマートな形状で印象的かつ視認性も高いです。基準階は約166坪の大型オフィスです。設備面は、個別空調、OAフロア、男女別トイレ、エレベーターは2基設置されています。駐車場もあるので社用車を使う企業様にも便利です。また周辺には、銀行、コンビニや飲食店が複数あるのでオフィス街としての利便性も高いでしょう。築地3丁目ビルは築地駅(3番出口)の他に新富町駅(4番出口)徒歩4分、東銀座駅(5番出口)徒歩8分で利用も可能です。

