宮城館ビル 3階
物件概要
物件番号
642-00113-40物件名
宮城館ビル所在地
- 東京都中央区東日本橋2-4-9
- アクセスマップ
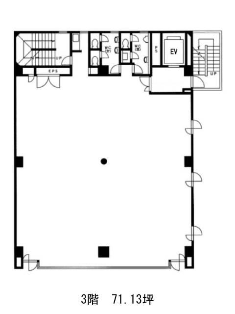
面積
71.13坪賃料(共益費含)
月額1,173,645円(16,500円/坪)
入居日
即保証金
64,017,000円礼金
なし更新料
新1ケ月償却費
なし竣工
1987年1月構造
SRC規模
地上7階トイレ
男女別空調
セントラルエレベーター
有セキュリティ
有駐車場
有耐震
新耐震基準基準階天井高
2500mm空室延床面積
71.13坪情報更新日
2025/11/07宮城館ビルのテナント募集中区画
| 階数 | 面積 | 賃料(共益費含む) | 保証金 | 入居可能日 | 検討リスト | 詳細 |
|---|---|---|---|---|---|---|
| 3 | 71.13坪 | 1,173,645円/月(16,500円/坪) | 6,401万円 | 即 |
…新着物件
アクセス
宮城館ビルの物件情報
宮城館ビル(中央区東日本橋)は東日本橋駅(出口)から徒歩3分の賃貸オフィスです。御幸通り沿いの視認性良好な角地に立地するオフィスビルのご紹介です。最寄り駅からのアクセスも良く、通勤利便性の高い立地が魅力。基準階は約71坪のオフィス区画で、室内には数本の柱がございますが、工夫次第でゾーニングやレイアウトに活かすことも可能です。1フロア1テナントの設計となっており、専有部分内に男女別トイレや給湯スペースを完備。共用部を気にすることなく快適な執務環境が整います。機械警備によるセキュリティ対策も万全で、安心してご利用いただけます。敷地内には駐車場も設けられており、営業車の出入りや来客対応にも対応可能です。宮城館ビルは東日本橋駅(出口)の他に馬喰横山駅(A4番出口)徒歩4分、馬喰町駅(3番出口)徒歩6分で利用も可能です。

