第5高野ビルのテナント募集中区画
| 階数 | 面積 | 賃料(共益費含む) | 保証金 | 入居可能日 | 検討リスト | 詳細 |
|---|---|---|---|---|---|---|
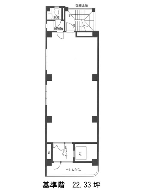
| 5 | 22.33坪 | 294,756円/月(13,200円/坪) | 178万円 | 即 |
…新着物件
アクセス
第5高野ビルの物件情報
第5高野ビル(中央区東日本橋)は東日本橋駅(B3番出口)から徒歩2分の賃貸オフィスです。第5高野ビルは東日本橋駅(B3番出口)の他に馬喰横山駅(A4番出口)徒歩3分、馬喰町駅(5番出口)徒歩4分で利用も可能です。

