第5高野ビル 5階
物件概要
物件番号
642-00008-50物件名
第5高野ビル所在地
- 東京都中央区東日本橋3-12-12
- アクセスマップ
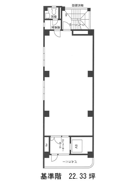
面積
22.33坪賃料(共益費含)
月額294,756円(13,200円/坪)
入居日
即保証金
1,786,400円礼金
なし更新料
新1ケ月償却費
2ケ月竣工
1985年1月構造
S造規模
地上9階トイレ
男女共用空調
個別空調エレベーター
有セキュリティ
有駐車場
無耐震
新耐震基準基準階天井高
空室延床面積
22.33坪情報更新日
2026/01/16第5高野ビルのテナント募集中区画
| 階数 | 面積 | 賃料(共益費含む) | 保証金 | 入居可能日 | 検討リスト | 詳細 |
|---|---|---|---|---|---|---|
| 5 | 22.33坪 | 294,756円/月(13,200円/坪) | 178万円 | 即 |
…新着物件
アクセス
第5高野ビルの物件情報
第5高野ビル(中央区東日本橋)は東日本橋駅(B3番出口)から徒歩2分の賃貸オフィスです。第5高野ビルは東日本橋駅(B3番出口)の他に馬喰横山駅(A4番出口)徒歩3分、馬喰町駅(5番出口)徒歩4分で利用も可能です。

