6階は現在募集がありません
1フロア募集区画あり

第5高野ビル 6階

前の写真 次の写真

物件概要

物件番号

642-00008-60

物件名

第5高野ビル

所在地

面積

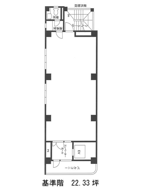
22.33坪

賃料(共益費含)


入居日

募集終了

保証金

礼金

更新料

償却費

竣工

1985年1月

構造

S造

規模

地上9階

トイレ

男女共用

空調

個別空調

エレベーター

セキュリティ

駐車場

耐震

新耐震基準

基準階天井高

空室延床面積

22.33坪

最寄駅

情報更新日

2026/01/16

第5高野ビルのテナント募集中区画

階数 面積 賃料(共益費含む) 保証金 入居可能日 検討リスト 詳細
5 22.33坪 294,756円/月(13,200円/坪) 178万円
…新着物件

アクセス

第5高野ビルの物件情報

第5高野ビル(中央区東日本橋)は東日本橋駅(B3番出口)から徒歩2分の賃貸オフィスです。
第5高野ビルは東日本橋駅(B3番出口)の他に馬喰横山駅(A4番出口)徒歩3分、馬喰町駅(5番出口)徒歩4分で利用も可能です。

近隣のエリア・駅から探す