3階は現在募集がありません
丹生(ニウ)ビル 3階
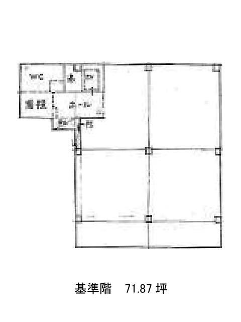
物件概要
丹生(ニウ)ビルのテナント募集中区画
現在、空室がございません。
アクセス
丹生(ニウ)ビルの物件情報
丹生(ニウ)ビル(中央区日本橋)は日本橋駅(A7番出口)から徒歩2分の賃貸オフィスです。永代通りから1本中に入った通り沿いに建てられているビルです。外観は濃いグリーンの吹付けに大きな窓が特徴的な視認性の高い物件です。周辺はオフィスビルや飲食店が立ち並ぶ、比較的落ち着いたエリアです。エントランスはレンガ調のタイル張りと大理石調の壁面、ステンドグラスも飾られており高級感があります。近隣にはコレド日本橋や複数の飲食店があり、毎日のお買い物やランチにと大変便利です。丹生(ニウ)ビルは日本橋駅(A7番出口)の他に大手町駅(B10番出口)徒歩5分、三越前駅(B6番出口)徒歩6分で利用も可能です。

