4階は現在募集がありません
アーバンネット日本橋2丁目ビル 4階
物件概要
アーバンネット日本橋2丁目ビルのテナント募集中区画
現在、空室がございません。
アクセス
アーバンネット日本橋2丁目ビルの物件情報
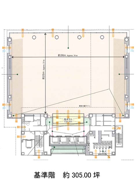
アーバンネット日本橋二丁目ビル(中央区日本橋)は日本橋駅(A6番出口)から徒歩1分の賃貸オフィスです。複数路線の利用が可能なアクセス良好な立地といえるでしょう。2016年竣工。新耐震基準を満たした地上0階建ての建物です。ガラス張りで視認性が高い外観は、とても綺麗で上層階からの眺望は良好です。基準階は約305坪と広く、室内は正方形に近い形をしているので、レイアウトしやすく、またOAフロアを備えており、男女トイレは別となっております。周辺にはコンビニや飲食店が複数あるため利便性が高いです。アーバンネット日本橋二丁目ビルは日本橋駅(A6番出口)の他に大手町駅(B10番出口)徒歩4分、三越前駅(B6番出口)徒歩5分で利用も可能です。

